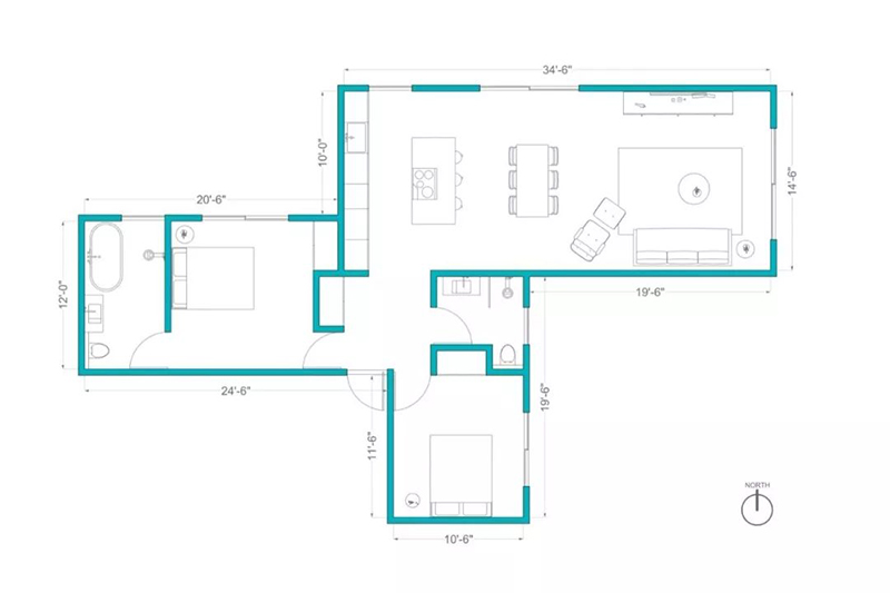
這套低沖擊、兩居室的集裝箱房屋體現了極簡主義風格的戶外環境。這個偏僻的地方被群山環繞,可以看到周圍超凡脫俗的景色,是遠離城市休閑的理想之地。為了盡可能保護原始環境,采用集裝箱設計并建造了這樣一套兩臥兩衛的房子。
為了保護住宅免受南方嚴酷的陽光照射,并提供與主干道隔離的私密空間,除了入口大門,設計師盡量減少了南立面的開口。
博客斯作為一個全過程集裝箱房設計的供應商,創建了一個完全定制的房子,并負責設計,制造,現場工作和安裝。
和所有的定制項目一樣,該房屋配備了超大的落地窗,集成存儲和極簡軌道照明。 開放式的生活區域沿著山谷軸向布置。
該項目用了大約兩個月時間完成,其中大部分時間用于準備基礎和公用事業工作,包括用一條新的地下供電線路將住宅與電網連接起來,以及安裝一個帶有化糞池的廢物管理系統。
第二間臥室里的一瞥。
在朝東的較小的浴室中排列淋浴盆區域。


服務熱線:15327288876




